Chicago, IL
Capital One Cafe, Hyde Park
Scope/Solutions
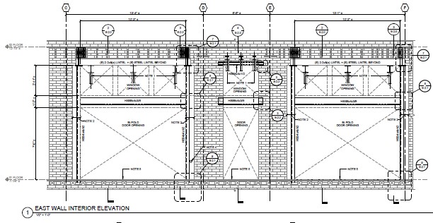
With its new cafés, Capital One offers banking services in a fun, community coffee shop setting. The design for the Hyde Park café brings this experience to Chicago’s South Side along the rejuvenated 53rd Street corridor. The project includes a 4,500 sq ft renovation in an existing early-1900s masonry and timber-framed building clad with white and green glazed brick and terra cotta. SGH was the structural engineer of record for the project.
Highlights of our work include the following:
- Evaluating the existing floor framing for new ATMs and temporary construction loads
- Designing new steel framing to support a new moving glass partition and at openings in existing masonry walls for large bifold windows and doors
- Providing conceptual shoring details for removing an existing masonry wall
- Performing water testing to identify sources for water leakage through the masonry wall systems and to confirm the effectiveness of completed repairs
- Designing new steel anchors and lintels to support salvaged terra cotta moulding between the new bifold windows and existing ribbon windows
- Strengthening timber framing for new floor drain openings
1 of 5
Project Summary
Solutions
New Construction | Repair & Rehabilitation
Services
Building Enclosures | Structures | Applied Science & Research
Markets
Commercial
Client(s)
IA Interior Architects | Bulley & Andrews, LLC
Specialized Capabilities
Building Design | Temporary Construction | Condition Assessments | Environmental Simulations
Key team members
Matthew Johnson
Structural Engineering Division Head, Chicago
Additional Projects
Midwest
300 East Randolph Street
During a routine facade inspection of 300 East Randolph, the inspector identified granite panels on the fifty-seven-story tower that needed to be replaced. SGH assisted the contractor by designing anchorage for the replacement panels.
Midwest
2015 Chicago Architecture Biennial, Lakeshore Kiosk Competition
As part of a broader initiative to enhance the lakefront, the Chicago Architecture Biennial solicited design submissions for four new kiosks. SGH collaborated with VOA Associates Incorporated to prepare a kiosk design submission for the international competition.




