Costa Mesa, CA
Vivante Phase II
Scope/Solutions
Vivante is a multibuilding assisted living and memory care community in Orange County. With Phase II, Vivante adds 118 assisted and independent living residences and many new amenities to the existing property. SGH served as the structural engineer for the project.
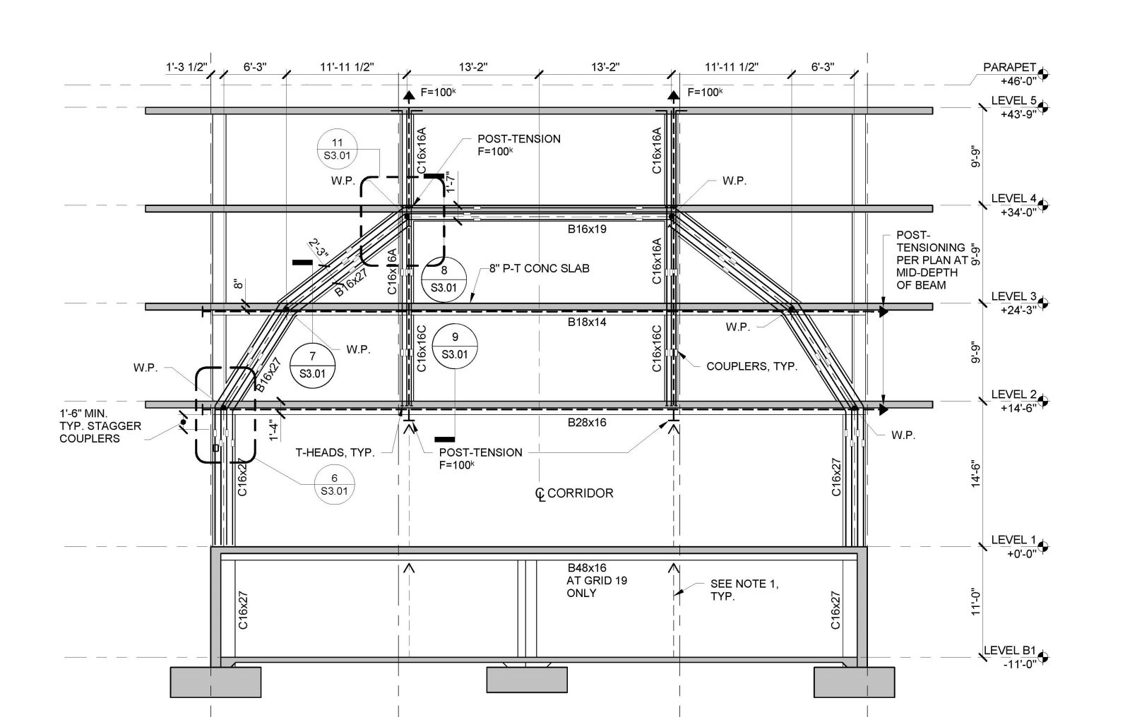
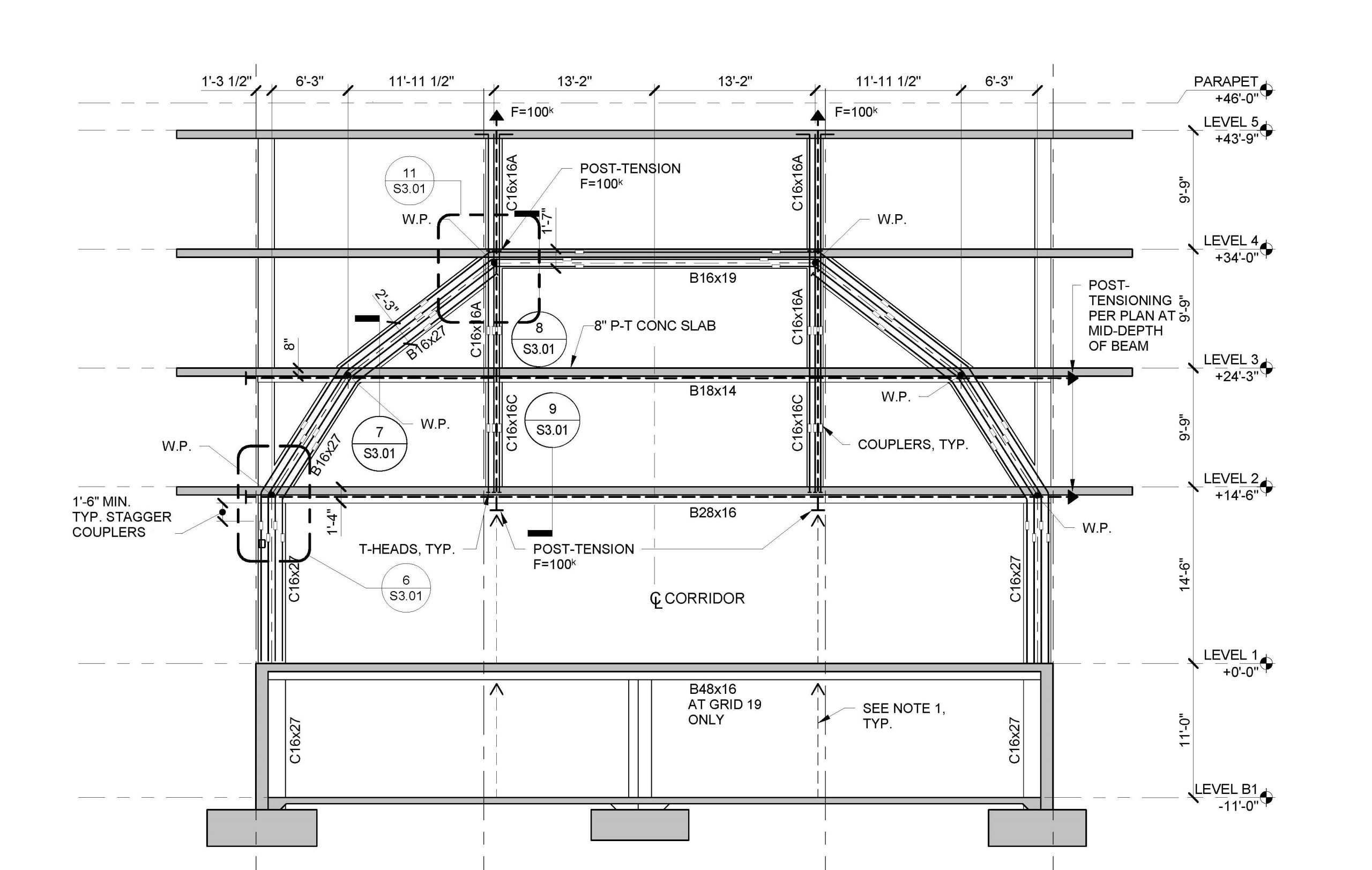
SGH designed the structure for the four-story building. Highlights of our design include the following:
- A partial basement, including parking and utility spaces
- Post-tensioned flat plate concrete floor slabs to provide reinforced concrete columns and shallow concrete foundations
- Special reinforced concrete shear walls integrated with the perimeter wall system and coordinated with the architectural design
- Concealed two-story concrete arches and post-tensioned queen-post hanger columns supporting the residential floors over the column-free multipurpose room
- A steel-framed porte cochere
Project Summary
Solutions
New Construction
Services
Structures
Markets
Residential | Mixed-Use
Client(s)
Awbrey Cook Rogers McGill Architects
Specialized Capabilities
Building Design
Key team members
Additional Projects
West
Wilshire Grand Center
At 1,100 ft in height, Wilshire Grand Center is one of the tallest buildings west of the Mississippi River. The tower houses below-grade parking, ground-level retail, eighteen floors of leasable office space, and 890 rooms for the InterContinental Hotel.
West
Vision on Wilshire
SGH consulted on the building enclosure, featuring a facade with alternating window walls and opaque panels.



